| MLS # | 939265 |
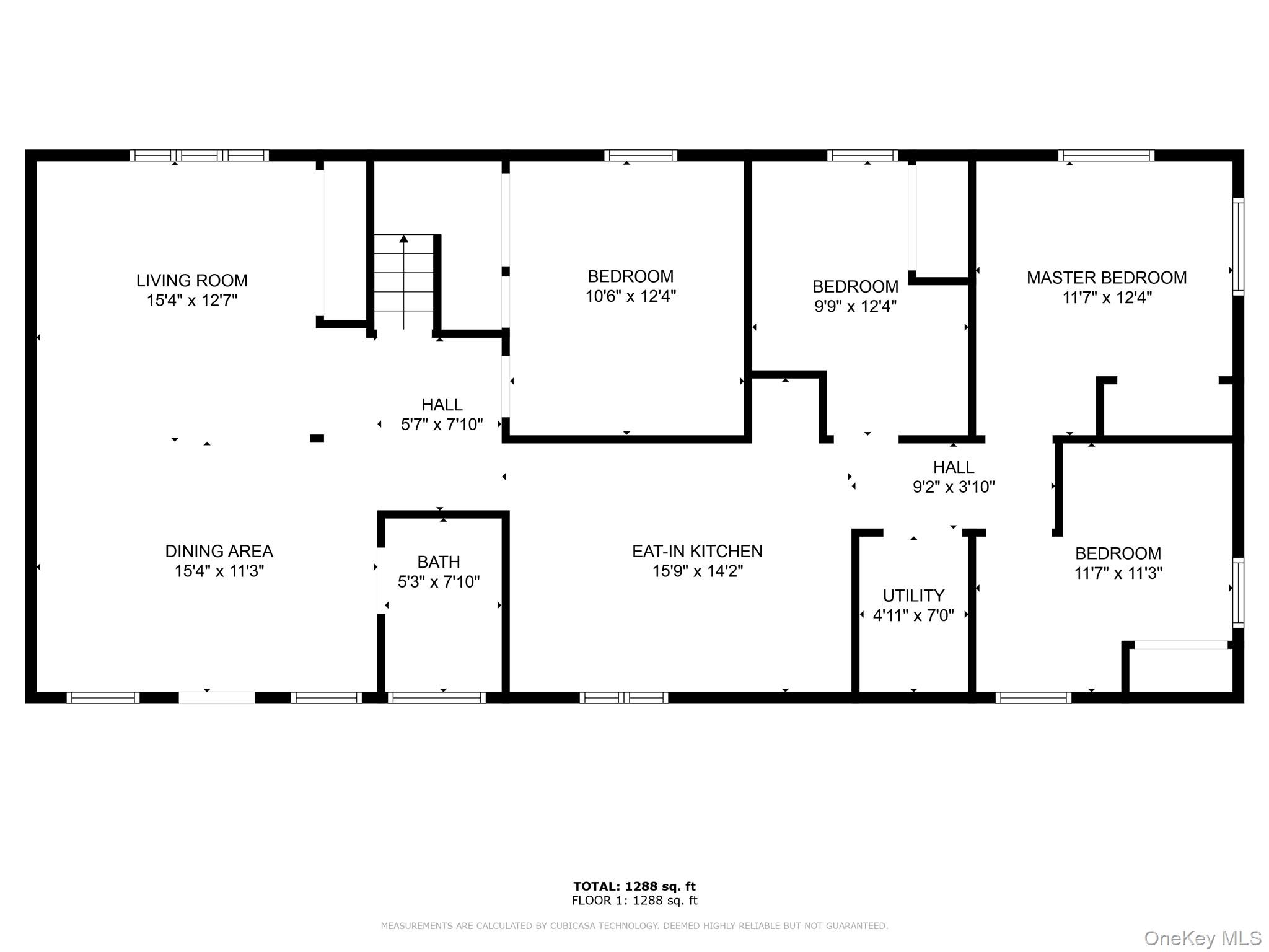
| Detalhes da propriedade | 3 quarto, 1 banheiro, exterior: 0.18 acres, interior: 1200 ft2, 111m2 (DOM): 19 days |
| Ano de construção | 1967 |
| Tipo de combustível | Gás natural |
| Porão | Nenhum |
| Trem | 1.6 milhas: "Copiague" |
| 1.9 milhas: "Lindenhurst" | |
![]() |
Agradável Apartamento Atualizado no 1º Andar; alugue este espaçoso apartamento mobiliado ou não, de acordo com suas necessidades. Com 3 quartos mais uma sala adicional que pode acomodar confortavelmente uma cama de casal, esta casa oferece um plano de piso aberto que conecta a sala de estar, a área de jantar e uma grande cozinha com eletrodomésticos atualizados. Aproveite a conveniência de lavadora e secadora na unidade e um banheiro completo moderno. Utilidades incluídas, Uso do quintal, Não são permitidos animais de estimação.
Beautifully Updated 1st Floor Apartment; rent this spacious apartment furnished or unfurnished to suit your needs. Featuring 3 bedrooms plus a bonus room that can comfortably fit a full-size bed, this home offers an open floor plan connecting the living room, dining area, and a large kitchen with updated appliances. Enjoy the convenience of in-unit washer and dryer and a modern full bath. Utilities included, Use of yard, No pets allowed. © 2025 OneKey™ MLS, LLC







