| ID # | 952663 |
| Detalhes da propriedade | exterior: 0.06 acres (DOM): 5 days |
| Impostos (por ano) | $1,300 |
![]() |
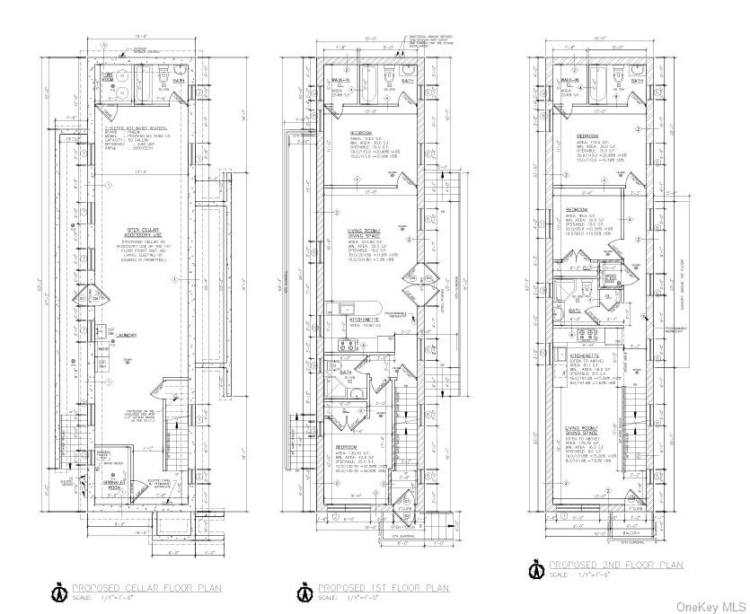
Oportunidade rara de adquirir um terreno edificável com planos arquitetônicos aprovados. Evite meses de planejamento e aprovações e comece diretamente a construção. Os planos são projetados para uma propriedade espaçosa de 2 famílias. Esta casa oferece 2 unidades dúplex, com um total de 4 quartos e 6 banheiros, além de um escritório extra no terceiro andar. Área total de 3795 pés quadrados de área construída. Excelente localização e perfeita para construtores ou compradores que buscam uma área de vida mais tranquila. Ligue hoje para agendar sua visita privada.
Rare opportunity to purchase a buildable lot with approved architectural plans in place. Skip months of planning and approvals and move directly toward construction. Plans are designed for a spacious 2-family property. This home offers 2 duplex units. with a total 4 bedrooms and 6 bathrooms plus an extra study room on the third floor. Total 3795 sq ft finished area residence. Excellent location and Perfect for builders or buyers seeking a calmer living area. Call today to schedule your private viewing. © 2025 OneKey™ MLS, LLC







